

船用青銅吸入通海閥
GB/T2030-1980船用青銅吸入通海閥 Marine bronze suction sea valves 性能規范 Technical Data 船用青銅吸入 通海閥 性能規范 公稱壓力Nominal Pressure(MPa) 公稱通徑 Nominal Diameter(mm) 適用介質 Applicable Medium 1.6 80-400 海水 Sea water 主要零部...
- 產品詳情
GB/T2030-1980船用青銅吸入通海閥
Marine bronze suction sea valves
性能規范 Technical Data
主要零部件材質Materials of Main Parts
Marine bronze suction sea valves
性能規范 Technical Data
| 公稱壓力Nominal Pressure(MPa) | 公稱通徑 Nominal Diameter(mm) | 適用介質 Applicable Medium |
|---|---|---|
| 1.6 | 80-400 | 海水 Sea water |
主要零部件材質Materials of Main Parts
| 零件名稱Parts name | 材料 Material | |
|---|---|---|
| 名稱Name | 牌號Marks | |
| 閥體、閥蓋Body、Cover | 鑄錫青銅 Cast Tin Bronze | ZCuSnl0Zn2 |
| 閥盤Disc | 鑄錫青銅 Cast Tin Bronze | ZCuSn10Zn2 |
| 閥桿Stem | 鋁青銅 Aluminum Bronze | CuAI9Mn2 |
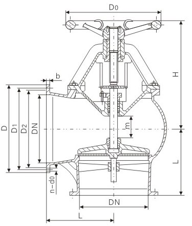
B型基本尺寸Dimensions

|
公稱通徑 DN(mm) |
結構尺寸 Structure dimension |
法蘭 Flange |
螺栓 Bolt |
手輪 Hand wheel D0 |
升程 Lift range m |
參考重量 Weight (kg) |
||||||
|---|---|---|---|---|---|---|---|---|---|---|---|---|
| L | H≈ | D | D1 | D2 | b | Do | n個 | Th. | ||||
| 80 | 125 | 360 | 170 | 138 | 118 | 14 | 15 | 8 | M14 | 160 | 24 | 19.0 |
| 100 | 135 | 415 | 190 | 158 | 138 | 14 | 15 | 8 | M14 | 180 | 30 | 23.6 |
| 125 | 160 | 470 | 215 | 183 | 164 | 14 | 15 | 10 | M14 | 200 | 40 | 31.2 |
| 150 | 175 | 506 | 240 | 208 | 190 | 14 | 15 | 12 | M14 | 225 | 48 | 49.8 |
| 200 | 220 | 595 | 295 | 264 | 247 | 15 | 15 | 12 | M14 | 280 | 60 | 70.0 |
| 250 | 260 | 698 | 365 | 327 | 306 | 16 | 17 | 14 | M16 | 360 | 70 | 111.0 |
| 300 | 300 | 780 | 430 | 386 | 360 | 19 | 22 | 14 | M20 | 400 | 78 | 170.3 |
| 350 | 320 | 910 | 480 | 436 | 410 | 20 | 22 | 16 | M20 | 450 | 100 | 229.0 |
| 400 | 380 | 960 | 530 | 486 | 460 | 21 | 22 | 16 | M20 | 500 | 110 | 299.0 |
聲明:本文中所有文字、數據、圖片均只適用于參考,船用青銅吸入通海閥性能參數、結構尺寸參數、價格等詳情,請聯系我們,電話:021-80392609。
-

GB/T598-1980船用外螺紋青銅填料旋塞閥
GB/T598-1980船用外螺紋青銅填料旋塞閥 Marine bronze male thread packed cocks 性能...
-

船用法蘭青銅填料直通型旋塞閥
GB/T593-1993船用法蘭青銅填料旋塞閥 Marine bronze flanged packed cocks 性能規范 T...
-

船用鑄鋼吸入通海閥
GB/T2029-1980船用鑄鋼吸入通海閥 Marine cast steel suction sea valves 性能規范 Te...
-

船用法蘭鑄鐵填料直通型旋塞閥
GB/T593-1993船用法蘭鑄鐵填料旋塞閥 Marine cast Iron flanged packed cocks 性能規...


