

ZJSP氣動薄膜單座調節閥
產品概述 ZJSP氣動薄膜單座調節閥采用頂部導向結構,配用多彈簧 執行機構或電動執行機構,流道呈 S 流線型。具有結構緊湊、 重量輕、動作靈敏、壓降損失...
- 產品詳情
產品概述
ZJSP氣動薄膜單座調節閥采用頂部導向結構,配用多彈簧 執行機構或電動執行機構,流道呈 S 流線型。具有結構緊湊、 重量輕、動作靈敏、壓降損失小、閥容量大、流量特性精確、 維護方便等***點,可用于苛刻的工作條件。特別適用于允許泄 露量小、閥前后壓差不大的場合。本系列產品有常溫型、高溫型、低溫型、調節切斷型、 波紋管密封型、夾套保溫型等多種型式。產品公稱壓力等級 有 PN1.6、4.0、6.4、10.0;閥體口徑范圍 DN20-300,適用 流體溫度-196-+560℃范圍內多種檔次。泄露等級有Ⅳ級、Ⅴ 級、Ⅵ級。流量特性有直線、等百分比特性多種品種規格 可供選擇。
本系列調節閥采用模塊化設計,可采用不同組合、配用 各種附件。
主要技術參數
| 閥體部分 | |
|---|---|
| 閥體形式 | 直通鑄造球型閥 |
| 閥體材質 | ZG230-450 ZG1Cr18Ni9 |
| 公稱通徑 | DN20-DN300 |
| 公稱壓力 |
PN1.6 2.5 4.0 6.4 10.0MPa ANSI 150 300 600LB JIS 10K 20K 30K 40K |
| 連接形式 | 法蘭:FF RF RTJ等 螺紋:適用于 1”以下 焊接:SW BW |
| 結構長度 | 符合 IEC534 |
| 閥蓋型式 | 常溫型 高溫型 波紋管密封型 低溫型 |
| 填料 | 聚四氟乙烯 柔性石墨等 |
| 密封墊 | 金屬夾石墨密封墊 四氟乙烯墊等 閥內部件 |
| 閥芯型式 | 單座柱塞型 |
| 流量特性 | 線性 等百分比 |
| 內件材質 | 1Cr18Ni9Ti 1Cr18Ni9Ti+PTFE |
| 執行機構 | |
| 氣動 | 多彈簧式執行機構 單彈簧式執行機構 |
| 作用方式 | 氣開式 氣關式 |
| 電動 | PSL系列 3810L系列 |
主要零件材料及內部結構

| 本體材質為碳鋼 | ||||
|---|---|---|---|---|
| 1 | 閥體 | WCB | LCB | WC9 |
| 2 | 閥座 | 304 | 304 | 304 |
| 3 | 閥芯 | 304 | 304 | 304 |
| 4 | 導向套 | 304 | 304 | 304 |
| 5 | 閥蓋 | WCB | LCB | WC9 |
| 6 | 閥桿 | 304 | 304 | 304 |
| 7 | 填料 | PTFE/柔性石墨 | ||
| 8 | 彈簧 | 65Mn | ||
| 9 | 螺母 | 304 | 304 | 304 |
| 本體材質為不銹鋼 | ||||
| 1 | 閥體 | CF8 | CF8M | CF3M |
| 2 | 閥座 | 304 | 316 | 316L |
| 3 | 閥芯 | 304 | 316 | 316L |
| 4 | 導向套 | 304 | 316 | 316L |
| 5 | 閥蓋 | CF8 | CF8M | CF3M |
| 6 | 閥桿 | 304 | 316 | 316L |
| 7 | 填料 | PTFE/柔性石墨 | ||
| 8 | 彈簧 | 65Mn | ||
| 9 | 螺母 | 304 | 316 | 316L |
閥蓋型式

規格與技術參數
| 公稱通徑 DN(mm) | 20 | 25 | 32 | 40 | 50 | 65 | 80 | 100 | 125 | 150 | 200 | |
|
額定流量系數 KV |
直線 | 7.6 | 12.1 | 19.4 | 30.3 | 48.3 | 75.9 | 121 | 193.6 | 302.5 | 484 | 759 |
| 等百分比 | 6.9 | 11 | 17.6 | 27.5 | 44 | 69.3 | 110 | 176 | 275 | 440 | 693 | |
| 執行機構型號 | 正作用 | ZHA-22 | ZHA-23 | ZHA-34 | ZHA-45 | |||||||
| 反作用 | ZHB-22 | ZHB-23 | ZHB-34 | ZHB-45 | ||||||||
| 額定行程 L(mm) | 16 | 25 | 40 | 60 | ||||||||
| 膜片有效面積 Ae(cm2) | 280 | 400 | 600 | 1000 | ||||||||
| 公稱壓力 PN(MPa) | 1.6 2.5 4.0 6.4 10.0 | |||||||||||
| 固有流量特性 | 直線 等百分比 | |||||||||||
| 固有可調比 R | 50:01:00 | |||||||||||
| 信號范圍 Pr(KPa) | 20-60、20-100、40-200、60-100、80-240 | |||||||||||
| 氣源壓力 Ps(MPa) | 0.14、0.25、0.28、0.40 | |||||||||||
主要性能指標
| 序號 | 項 目 | 標準型調節閥 | 散熱、低溫型調節閥 | ||||
| 不帶定位器 | 帶定位器 | 不帶定位器 | 帶定位器 | ||||
| 1 | 基本誤差<(%) | ±5 | ±1 | ±15 | ±4 | ||
| 2 | 回差<(%) | 3 | 1 | 10 | 3 | ||
| 3 | 死區<(%) | 3 | 0.4 | 8 | 1 | ||
| 4 | 始終點偏差(%) | 氣開 | 始點 | ±2.5 | ±1 | ±6 | ±2.5 |
| 終點 | ±5 | ±15 | |||||
| 氣關 | 始點 | ±5 | ±15 | ||||
| 終點 | ±2.5 | ±6 | |||||
| 5 | ±2.5 | 2.5 | 6 | 2.5 | |||
流量特性

|
行程 流量特性 |
0 | 10 | 20 | 30 | 40 | 50 | 60 | 70 | 80 | 90 | 100 |
| 線性 | 2 | 11.8 | 21.6 | 31.4 | 41.2 | 51 | 61 | 40.5 | 80.6 | 90.7 | 100 |
| 等百分比 | 2 | 3 | 4.42 | 6.3 | 9.5 | 14.2 | 21.1 | 30.8 | 45.7 | 67.8 | 100 |
允許壓差
|
執行機 構型號 |
彈簧范圍 (KPa) |
氣源壓力 (MPa) |
定位器 帶/否 |
閥座直徑 dn(mm) | ||||||||||
| 20 | 25 | 32 | 40 | 50 | 65 | 80 | 100 | 125 | 150 | 200 | ||||
| ZHA-22 | 20—100 | 0.14 | 否 | 0.95 | 0.61 | |||||||||
| 帶 | 2.55 | 1.63 | ||||||||||||
| 40—200 | 0.25 | 帶 | 3.34 | 2.14 | ||||||||||
| 80—240 | 0.4 | 帶 | 6.52 | 4.17 | ||||||||||
| ZHA-23 | 20—100 | 0.14 | 否 | 0.49 | 0.32 | 0.2 | ||||||||
| 帶 | 1.31 | 0.84 | 0.54 | |||||||||||
| 40—200 | 0.25 | 帶 | 1.72 | 1.1 | 0.71 | |||||||||
| 80—240 | 0.4 | 帶 | 3.36 | 2.15 | 1.37 | |||||||||
| ZHA-34 | 20—100 | 0.14 | 否 | 0.18 | 0.12 | 0.08 | ||||||||
| 帶 | 0.49 | 0.32 | 0.21 | |||||||||||
| 40—200 | 0.25 | 帶 | 0.65 | 0.43 | 0.27 | |||||||||
| 80—240 | 0.4 | 帶 | 1.26 | 0.83 | 0.53 | |||||||||
| ZHA-45 | 20—100 | 0.14 | 否 | 0.09 | 0.06 | 0.03 | ||||||||
| 帶 | 0.23 | 0.16 | 0.09 | |||||||||||
| 40—200 | 0.25 | 帶 | 0.3 | 0.21 | 0.12 | |||||||||
| 80—240 | 0.4 | 帶 | 0.58 | 0.4 | 0.22 | |||||||||
|
執行機 構型號 |
彈簧范圍 (Kpa) |
氣源壓力 (MPa) |
定位器 帶/否 |
閥座直徑 dn(mm) | ||||||||||
| 20 | 25 | 32 | 40 | 50 | 65 | 80 | 100 | 125 | 150 | 200 | ||||
| ZHB-22 | 20—100 | 0.14 | 帶/否 | 0.95 | 0.61 | |||||||||
| 40—200 | 0.25 | 帶 | 2.55 | 1.63 | ||||||||||
| 80—240 | 0.28 | 帶 | 5.73 | 3.67 | ||||||||||
| ZHB-23 | 20—100 | 0.14 | 帶/否 | 0.49 | 0.32 | 0.2 | ||||||||
| 40—200 | 0.25 | 帶 | 1.31 | 0.84 | 0.54 | |||||||||
| 80—240 | 0.28 | 帶 | 2.95 | 1.89 | 1.21 | |||||||||
| ZHB-34 | 20—100 | 0.14 | 帶/否 | 0.18 | 0.12 | 0.08 | ||||||||
| 40—200 | 0.25 | 帶 | 0.49 | 0.32 | 0.21 | |||||||||
| 80—240 | 0.28 | 帶 | 1.11 | 0.73 | 0.47 | |||||||||
| ZHB-45 | 20—100 | 0.14 | 帶/否 | 0.09 | 0.06 | 0.03 | ||||||||
| 40—200 | 0.25 | 帶 | 0.23 | 0.16 | 0.09 | |||||||||
| 80—240 | 0.28 | 帶 | 0.52 | 0.36 | 0.2 | |||||||||
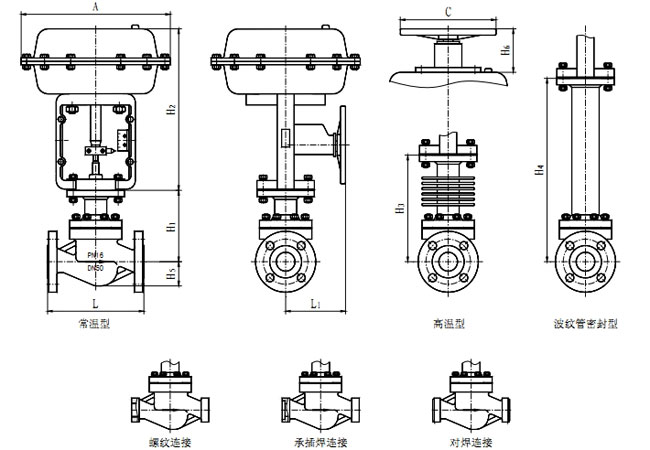
配氣動執行機構外形尺寸(常溫型、高溫型)
| 公稱通徑(DN) | 20 | 25 | 32 | 40 | 50 | 65 | 80 | 100 | 125 | 150 | 200 | |
|
結構長度 (L) |
PN16/25 | 184 | 184 | 200 | 222 | 254 | 276 | 298 | 352 | 420 | 451 | 543 |
| PN40 | 184 | 184 | 200 | 222 | 254 | 276 | 317 | 368 | 400 | 473 | 568 | |
| PN64、100 | 206 | 210 | 251 | 251 | 286 | 311 | 337 | 394 | 500 | 508 | 610 | |
| H1 | 128 | 128 | 152 | 152 | 160 | 205 | 205 | 208 | 273 | 333 | 364 | |
| H2 | 298 | 298 | 298 | 298 | 298 | 380 | 380 | 380 | 510 | 510 | 510 | |
| H3 | 208 | 208 | 224 | 228 | 228 | 334 | 334 | 342 | 408 | 453 | 482 | |
| H4 | 338 | 338 | 402 | 402 | 405 | 627 | 628 | 635 | 698 | 702 | 728 | |
| H5 | 53 | 58 | 68 | 73 | 80 | 90 | 98 | 108 | 123 | 140 | 168 | |
| H6 | 180 | 180 | 180 | 180 | 180 | 236 | 236 | 236 | 310 | 310 | 310 | |
| A | 282 | 282 | 282 | 282 | 282 | 360 | 360 | 360 | 470 | 470 | 470 | |
| C | 220 | 220 | 220 | 220 | 220 | 270 | 270 | 270 | 320 | 320 | 320 | |
| L1 | 289 | 289 | 289 | 289 | 289 | 347 | 347 | 347 | 476 | 476 | 476 | |
| 壓力等級 | GB:1.6、2.5、4.0、6.4、10.0MPa ANSI:150、300、600LB JIS:10、20、30、40K | |||||||||||
| 執行機構 | ZHB-22 | ZHB-23 | ZHB-34 | ZHB-45 | ||||||||
產品外形結構尺寸圖


聲明:本文中所有文字、數據、圖片均只適用于參考,ZJSP氣動薄膜單座調節閥性能參數、結構尺寸參數、價格等詳情,請聯系我們,電話:021-80392609。
-

GHJ991W-16P電動針型調節閥 不銹鋼卡套連接信號輸
*** 滬工恒 公稱直徑 6cm 數量 560個 是否支持加工定制 是 是否進口 否 包裝規格 DN6 ...
-

微型電動球閥 不銹鋼內螺紋 絲扣微型閥 小型調節球形
*** 滬工恒 公稱直徑 15cm 數量 450個 是否支持加工定制 是 是否進口 否 包裝規格 DN1...
-

GHY43F衛生級快裝式減壓閥 不銹鋼卡盤卡箍卡套閥
*** 滬工恒 數量 580個 是否支持加工定制 是 是否進口 否 包裝規格 DN40-DN50 產地 蘇...
-

微小流量調節閥 電動精確控制小流量比例調節閥門
*** 滬工恒 驅動方式 電動 連接形式 螺紋 特殊功能 高精度 零部件及配件 執行器 形態 ...


