

LC-(II)調節插板閥
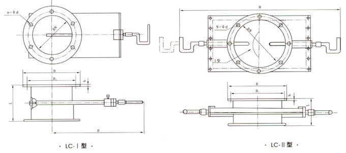
產品概述 調節插板閥結構簡單、操作自如、閥板采用***質碳素鋼板、滑動靈活、插抽省力、密封性能良好、局部陰力損失...
- 產品詳情
產品概述
調節插板閥結構簡單、操作自如、閥板采用碳素鋼板、滑動靈活、插抽省力、密封性能良好、局部陰力損失小、維護保養拆裝方便、不易變形。調節插板閥分為I型和II型,用于通風除塵、風力輸送及排風系統管路上調節流量。II型主要用于固體粉料輸送的調節流量和切斷。主要性能參數
公稱壓力:0.05Mpa介質流速:28m/s
適用溫度:≤300℃
適用介質:I型為空氣、粉塵、氣體II型為固體粉料、晶體料等。
產品外形結構尺寸
| DN | D | D1 | b | H | L | n-φd | 質量kg |
| 80 | 150 | 120 | 6 | 240 | 80 | 4-φ10 | 36 |
| 90 | 160 | 130 | 255 | 60 | |||
| 100 | 170 | 140 | 270 | 98 | |||
| 110 | 180 | 150 | 285 | 110 | |||
| 120 | 190 | 160 | 300 | 100 | 6-φ10 | 127 | |
| 130 | 200 | 170 | 315 | 140 | |||
| 140 | 210 | 180 | 330 | 150 | |||
| 150 | 220 | 190 | 345 | 167 | |||
| 160 | 230 | 200 | 8 | 360 | 175 | ||
| 170 | 240 | 210 | 375 | 195 | |||
| 180 | 250 | 220 | 380 | 210 | |||
| 190 | 260 | 230 | 405 | 225 | |||
| 200 | 270 | 240 | 420 | 120 | 8-φ10 | 236 | |
| 210 | 280 | 250 | 435 | 248 | |||
| 220 | 290 | 260 | 450 | 262 | |||
| 230 | 300 | 270 | 460 | 280 | |||
| 240 | 310 | 280 | 8 | 465 | 120 | 8-φ10 | 291 |
| 250 | 320 | 290 | 480 | 310 | |||
| 260 | 330 | 300 | 495 | 340 | |||
| 280 | 350 | 320 | 510 | 360 | |||
| 300 | 380 | 345 | 525 | 140 | 8-φ12 | 380 | |
| 320 | 400 | 365 | 540 | 400 | |||
| 340 | 420 | 385 | 555 | 420 | |||
| 360 | 440 | 405 | 1040 | 450 | |||
| 380 | 460 | 425 | 10 | 1070 | 490 | ||
| 400 | 480 | 445 | 1110 | 550 | |||
| 420 | 500 | 465 | 1140 | 160 | 590 | ||
| 450 | 530 | 495 | 1210 | 630 | |||
| 480 | 560 | 525 | 1270 | 12-φ12 | 660 | ||
| 500 | 580 | 545 | 1310 | 690 | |||
| 530 | 610 | 575 | 1370 | 720 | |||
| 560 | 640 | 605 | 1400 | 750 |
產品外形結構尺寸圖

聲明:本文中所有文字、數據、圖片均只適用于參考,LC-(II)調節插板閥性能參數、結構尺寸參數、價格等詳情,請聯系我們,電話:021-80392609。






